Kaufland

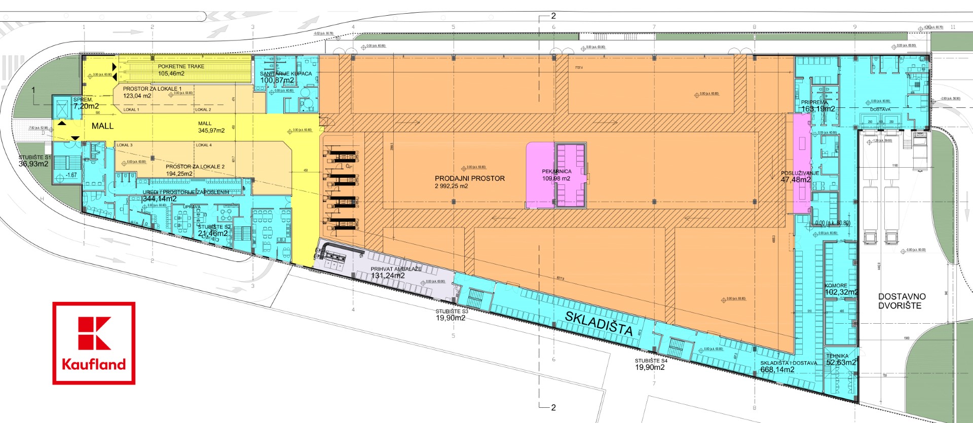
Location: Poljička street bb, Split, HR

Area: cca 6.985 m²

Year: 2019 location permit

Client: Kaufland Croatia k.d.

Type: Retail

Kaufland
Kaufland
Kaufland
Kaufland
Kaufland
Kaufland
Kaufland
Kaufland